Bienes&Moras Habita Tu Futuro
Bienes&Moras Habita Tu Futuro
  • Cell: +524431368735
  • Office: 4431368735
  • Email: bienesymoras@gmail.com

Casa en preventa PENSADOR MEXICANO/ VERGEL

Ampliación Campestre del Vergel, Morelia

$2,200,000 For Sale

  • 3 Bedrooms
  • 2 Bathrooms
  • 1 Half Bathrooms
  • 2 Parking spaces
  • 128 m² total space
  • 96 m² Lot Size
  • 16 m Lot Length
  • 6 m Lot Width
  • New Age
  • EB-UN2952 ID
Description

¡Exclusiva casa en preventa! En Fraccionamiento privado: Pensador Mexicano.
Zona: Vergel.
Características:

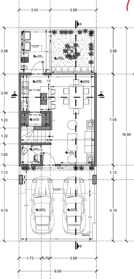
-Palnta baja:
• Cochera 2 autos
• ⁠Espacios de sala y comedor
• ⁠Cocina y alacena
• ⁠Jardin
• ⁠Patio de servicio
• ⁠Medio baño para visitas

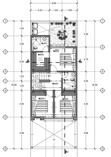
-Segunda planta
• 2 habitaciones secundarias
• ⁠Baño completo
• ⁠Habitación principal con vestidor y baño completo.

Extras:
- Acceso privado
- ⁠Aljibe de 8,000 lt
- ⁠Tanque estacionario

Agenda tu cita hoy mismo.
-

Amenities
  • Balcony
  • Cistern
  • Street parking
  • Garden
  • Patio
  • Closed-Circuit Security System
  • Equipped Kitchen
  • Laundry Room
  • Double story
  • 24 Hour Security
Bienes&Moras Habita Tu Futuro
Bienes&Moras Habita Tu Futuro
  • Cell: +524431368735
  • Office: 4431368735
  • Email: bienesymoras@gmail.com